9406 SEVEN COURTS DRIVEBALTIMORE, MD 21236
Due to the health concerns created by Coronavirus we are offering personal 1-1 online video walkthough tours where possible.




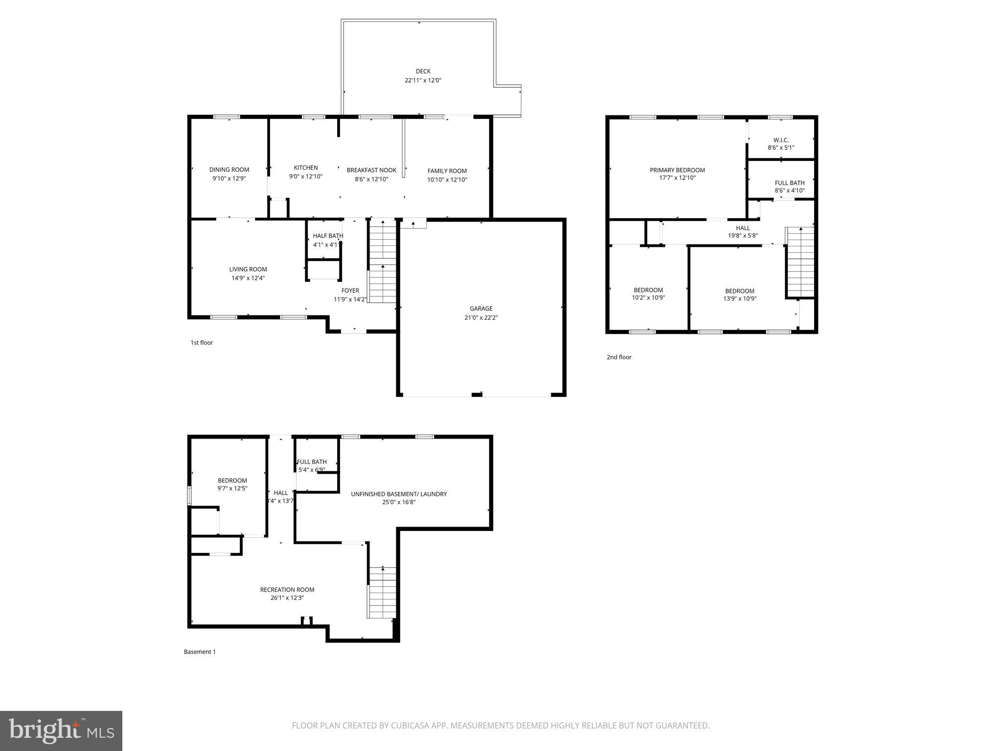
Coming Soon! Open House on Sunday, January 4th, from 1pm to 3pm! Welcome to 9406 Seven Courts Drive, a spacious and inviting single-family home located in the sought-after Oakhurst neighborhood of Nottingham in Baltimore County. This charming home has 4 bedrooms, 2.5 bathrooms, a 2 car attached garage, and it sits on a large corner lot with a fully fenced rear yard and a rear composite deck. With the finished basement space, there is over 2500 square feet of living space. On the first floor, there is a half bathroom, kitchen, family room, living room, and a separate dining room. The second floor has three spacious bedrooms and an updated bathroom. The primary bedroom has a spacious walk in closet. There is brand new carpeting on the second floor and steps. The partially finished basement has brand new LVP flooring, a fourth bedroom, and a full bathroom. There is also plenty of storage space and a laundry area in the unfinished portion of the basement. Conveniently located near many dining and shopping options, White Marsh Mall, The Avenue at White Marsh, and local parks such as Gunpowder Falls State Park and Honeygo Regional Park, this home also offers quick access to I-95, I-695, and U. S. Route 1. The seller's recent improvements include: 2025 - Basement Door, Garbage Disposal, New basement floor/paint, First floor paint, new carpet in family room, steps, and upper level, 6 windows replaced 2024 - Front Door 2023 - New Roof 2018 - Furnace, Solar Panels, Upstairs Bathroom, Fence, Sump Pump
| 11 hours ago | Listing updated with changes from the MLS® | |
| 14 hours ago | Listing first seen on site |
The real estate listing information is provided by Bright MLS is for the consumer's personal, non-commercial use and may not be used for any purpose other than to identify prospective properties consumer may be interested in purchasing. Any information relating to real estate for sale or lease referenced on this web site comes from the Internet Data Exchange (IDX) program of the Bright MLS. This web site references real estate listing(s) held by a brokerage firm other than the broker and/or agent who owns this web site. The accuracy of all information is deemed reliable but not guaranteed and should be personally verified through personal inspection by and/or with the appropriate professionals. Properties in listings may have been sold or may no longer be available. The data contained herein is copyrighted by Bright MLS and is protected by all applicable copyright laws. Any unauthorized collection or dissemination of this information is in violation of copyright laws and is strictly prohibited. Copyright © 2020 Bright MLS. All rights reserved.


Did you know? You can invite friends and family to your search. They can join your search, rate and discuss listings with you.